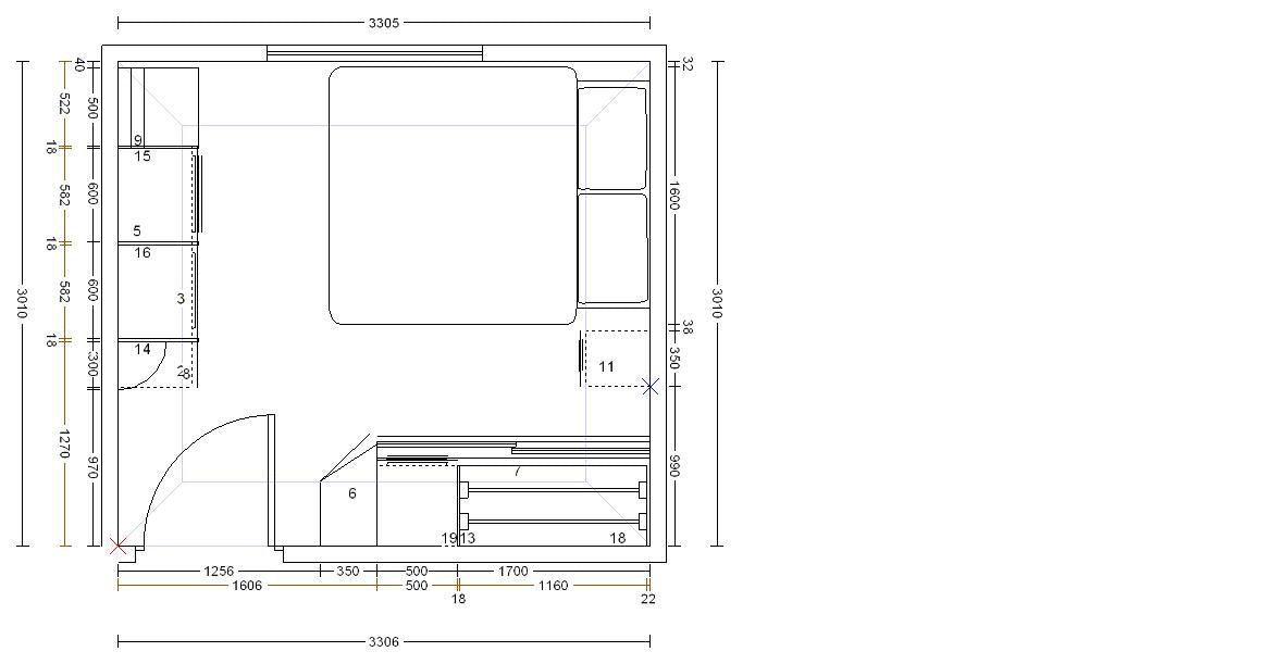
JOB PHOTOS
Below are some more photos of the job, showing different angles and methods of CAD Design.
This is a really helpful tool in design for both us and the customer!
REALISTIC MOCK-UP


REALISTIC MOCK-UP



Below are some more photos of the job, showing different angles and methods of CAD Design.
This is a really helpful tool in design for both us and the customer!